




The building generator is an application that allows users to create a digital model of a building, starting from a blueprint. This tool allows for the fast creation of any building for training purposes of the Belgian security forces.
I started on this application when I was an intern, and has continued into my full-time employment. In total, this first version of the tool has taken about 8 months of development. It started as a small tool, which has grown overtime, when the usefulness of the tool became apparent.
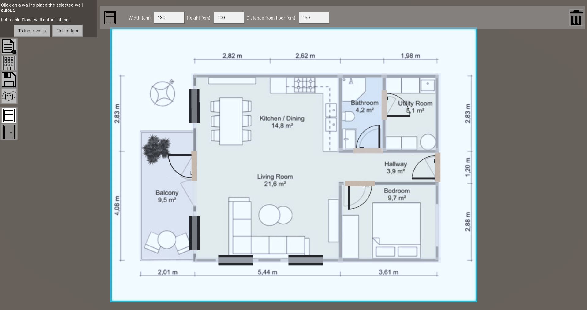
The generator creates a bare-bones building, but it has the correct scale and the windows and doors are in the correct place. This is a deliberate choice, since we noticed during trainings that the users don’t need the visual detail. They need to building to have the exact shape it is in real life.
The tool has been made to be as user friendly as possible, since most of the target audience are not that comfortable using a computer. So, to place the wall points, windows, and doors, the user just needs to click on the blueprint. This will give immediate feedback, by either place the object, or a line representing the wall.
When the building has been created, the user can export it as an FBX. This is for the more technical users; in case they have a need of the 3D model.
The main option for user when they finished the building, is to either save the building file for later user; or to immediately send it to the simulator to use in a training session. The saving turns the building into a JSON file and zips it together with the image of the blueprint. This zip-file can then be imported into the simulator.
The tool is being made in close collaboration with the end users of our training simulator. This is very important to everything we do in our team. We don't make this for ourselves, but for the end-users. Everything we make needs to be useful for them, and this tool is an important part of that. If they need a building in 5 minutes, this tool should, and can, provide that flexibility.
This application is made using Unity 6, and UI toolkit for the UI. This is the first bigger project I made using UI toolkit. I learned a lot about using the UI builder with the binding system it provides.